The #1 question everyone wants to know about our home build is “how much per square foot?” and don’t worry I’m very willing to share, but I have to point out that this number could be really misleading without digging into the details. In this post I’m breaking down exactly what the base price does […]
October 22, 2025

We’re building our dream home with Schumacher Homes on the outskirts of Charleston, SC and documenting everything so you don’t have to learn the hard way. Truthfully, I scoured the internet when we started this process and couldn’t find anyone else really spilling the tea, so here it is! If you’re thinking about building, this […]
October 22, 2025

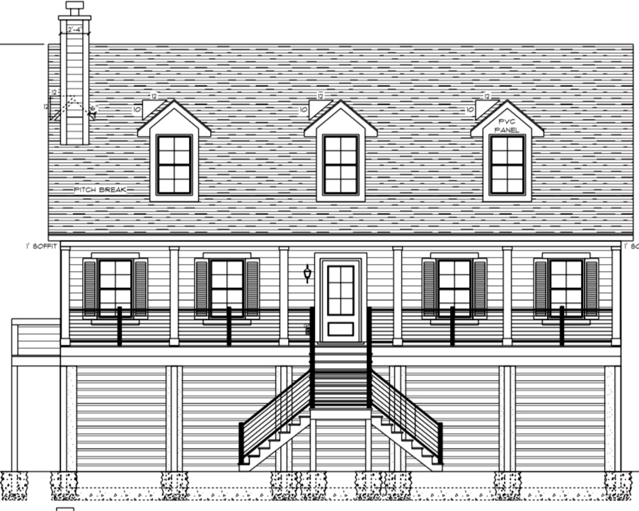
After a lot of deliberation and a reality check of just how much an elevated foundation costs, we chose the Meadowview floorplan from Schumacher Homes. We loved its open-concept heart and family-friendly layout, but we didn’t leave it untouched. With a realistic budget and real-life needs, we made a few smart modifications that made a big […]
October 22, 2025

If you ask me, it’s totally worth trading Target runs for tractor rides, but country life certainly does come with a few “inconveniences” (read: essential line items) when you build without town utilities. We also built our home .4 miles from the intracoastal water way, which added a few more zeros in places we didn’t expect. The same […]
October 22, 2025
